Attefallhaus Uno 380 - 18,24 m²
Attefallshus Uno 380 ist ein traditionell gestaltetes Schmuckstück mit Holzästen und einfachen Details, wie der Firstverzierung der Windschutzscheibe oder den Fenster- und Türlamellen, die zusammen zum Charme beitragen. Die Doppeltür gibt Ihnen die Möglichkeit, sich zu öffnen und Licht, Luft und Natur hereinzulassen. Dieses hübsche Cottage verfügt über einen Raum von 18,24 m², der sich hervorragend als zusätzlicher Platz für Gäste oder als Nebengebäude, Abstellraum oder Studio eignet.
Um das Haus vor Nässe zu schützen, ist es sinnvoll, eine Dachentwässerung dort anzubringen, wo der Niederschlag vom Haus weggeleitet wird. Als Option im Kaufmenü erhältlich.
Durch die Wahl der Dacheindeckung und Farben für die Fassade können Sie dem Haus Ihren eigenen Stempel aufdrücken. Die Kabine wird unbehandelt geliefert.
Dank der Einfamilienhausverordnung dürfen beliebig viele Einfamilienhäuser von maximal 30 Quadratmetern als Ergänzung zu einem Ein- oder Zweifamilienhaus gebaut werden. Denken Sie nur daran, dass die Firsthöhe 4 Meter nicht überschreiten darf. Im Gegensatz zum Friggeboden dürfen Reihenhäuser nicht nur als Ergänzungsgebäude, sondern auch als eigenständige Wohnungen möbliert und genutzt werden. Erkundigen Sie sich bei der Wohnungsbehörde nach zusätzlichen Vorschriften für verlassene Häuser.
Fertig zum Zusammenbauen
Dieses Schutzhaus wird komplett als Bausatz geliefert und lässt sich anhand der beigefügten Zeichnung einfach zusammenbauen. Alternativ beauftragen Sie einen Handwerker. Die Kabine hat ein Design und eine Struktur aus astigem Holz, wodurch sie sowohl einfach zu montieren als auch stabil ist. Alle Materialien werden unbehandelt geliefert, es empfiehlt sich eine frühzeitige Behandlung mit Grundöl, Außengrundierung oder Decklack. Enthalten ist alles, was für die Montage benötigt wird, also Nägel, Schrauben usw.
Dach/Boden und Fundament
Dach und Boden bestehen aus 18 mm Rohblech. Böden sind nicht im Bausatz enthalten, aber optional erhältlich. Das Fundament müssen Sie selbst herstellen, Materialien dafür sind nicht im Lieferumfang enthalten. Wie das Fundament hergestellt wird, hängt von den Bodenverhältnissen, dem Aussehen des Hauses und Ihren Vorlieben ab. Es kann entweder eine Platte gegossen oder ein Sockelsockel auf beispielsweise Gartenfliesen oder Leichtklinker verwendet werden.
Notiz! Unterlagekarton ist inklusive, Schindeln und Bodenbelag stehen im Kaufmenü zur Auswahl.
Materialien & Abmessungen
Material: Nordische Fichte
Grundfläche : 17,76 m²
Wandstärke: 28 mm
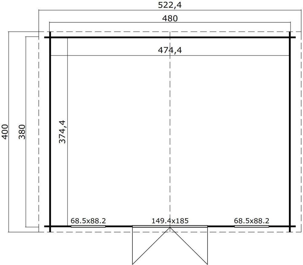
Maße Außenwand: 480x380 cm
Spitzenhöhe: 256,5 cm
Wandhöhe: 193,8 cm
Deckenüberstand: 10 cm
Dachfläche: 21,6 m²
Dachneigung: 14,7°
Fenster: 2 x Fenster (685 x 882 mm), 1 Glas nach innen öffnend mit Kippfunktion
Doppeltür : 1 x 1494 x 1850 mm. Aus massiver Fichte mit Aluminiumschwelle, inkl. Schließzylinder und Griff
So gehen wir mit Kundenrezensionen um:
Wir stellen sicher, dass unsere Produktbewertungen von echten Kunden stammen, durch folgenden Prozess:
Nach jeder ausgelieferten Bestellung senden wir dem Kunden per E-Mail einen eindeutigen Link. Über diesen Link kann der Kunde ausschließlich die spezifischen Produkte bewerten, die in der jeweiligen Bestellung enthalten waren – andere Produkte können über denselben Link nicht bewertet werden. Auf der Bewertungsseite hat der Kunde zudem die Möglichkeit, uns als Händler zu bewerten. Diese Methode garantiert, dass alle Rezensionen von Kunden stammen, die die bewerteten Produkte tatsächlich gekauft und erhalten haben.
Veröffentlichung von RezensionenWir veröffentlichen alle Rezensionen, die unseren Richtlinien entsprechen, unabhängig von der Bewertung. Das bedeutet, dass sowohl positive als auch negative Meinungen angezeigt werden, solange sie keine unangemessene Sprache, persönlichen Angriffe enthalten oder irrelevant sind.
Rezensionen, die sich ausschließlich auf Lieferprobleme (z.B. Verspätungen) beziehen, werden nicht auf der Produktseite veröffentlicht, da sie nicht das Produkt selbst bewerten. Solche Anmerkungen können jedoch in der Händlerbewertung hinterlassen werden.
Berechnung der DurchschnittsbewertungDie durchschnittliche Bewertung eines Produkts wird als Mittelwert aller veröffentlichten Rezensionen für genau dieses Produkt angezeigt.
Mehr lesen- Niedrige Preise & großes Sortiment
- Nur hochwertige Produkte!
- Zahlen Sie 14 Tage nach Lieferung ohne Aufpreis!
- Schnelle Lieferung!
- Ausgezeichneter Kundenservice!
- Unser kompetenter und zuvorkommender Kundenservice steht Ihnen gerne zur Seite und beantwortet alle Fragen rund um Ihren Kauf!
Indem Sie Mitglied werden, akzeptieren Sie Freddyhaus.de Datenschutzbestimmungen.







