Attefall Haus Lina B .V2 - 22,4 m²
Attefallshus Lina B. V2 ist ein helles und sehr angenehmes Ferienhaus in traditionellem Astwerk mit großen Glas- und Türelementen, die die Grenze zwischen Innen und Außen verwischen. 4 Zimmer mit einer Gesamtwohnfläche von 21,66 m², davon hat der Schlafboden eine Wohnfläche von 7,87 m². Hier haben Sie die Möglichkeit sich beispielsweise mit Küche, Bad und Schlafzimmer einzurichten. Die unbehandelten Oberflächen geben Ihnen zudem die Möglichkeit, der Kabine mit passenden Farben und Dachmaterialien Ihren eigenen Stempel aufzudrücken.
Attefallshus kann für viele verschiedene Zwecke genutzt werden, z. B. als Gästehaus, Arbeitszimmer, Sommerhaus, Kolonialhaus, Atelier oder zusätzlicher Platz für die Kinder im Teenageralter.
Möglich wird dies durch die Einfamilienhausverordnung, die den Bau einer freien Anzahl von Einfamilienhäusern von maximal 25 Quadratmetern als Ergänzung zu einem Ein- oder Zweifamilienhaus erlaubt. Denken Sie nur daran, dass die Firsthöhe 4 Meter nicht überschreiten darf. Im Gegensatz zu Schuppen dürfen Einfamilienhäuser nicht nur als Ergänzungsgebäude, sondern auch als eigenständige Wohnungen eingerichtet und genutzt werden. Erkundigen Sie sich bei der Wohnungsbehörde nach zusätzlichen Vorschriften für verlassene Häuser.
Fertig zum Zusammenbauen:
Dieses Schutzhaus wird komplett als Bausatz geliefert und lässt sich anhand der beigefügten Zeichnung einfach zusammenbauen. Das Design und die Konstruktion der Kabine machen sie sowohl einfach zu montieren als auch stabil. Alle Materialien werden unbehandelt geliefert, es empfiehlt sich eine frühzeitige Behandlung mit Grundöl, Außengrundierung oder Decklack. Enthalten ist alles, was für die Montage benötigt wird, also Nägel, Schrauben usw.
Dachgeschoss:
Dach und Boden bestehen aus 18 mm Rohblech, dieses ist im Bausatz enthalten. Behandelte Trageleinen für das Fundament sind ebenfalls enthalten. Das Fundament müssen Sie selbst herstellen, Materialien dafür sind nicht im Lieferumfang enthalten. Wie das Fundament hergestellt wird, hängt von den Bodenverhältnissen, dem Aussehen des Hauses und Ihren Vorlieben ab. Es kann entweder eine Platte gegossen oder ein Sockelsockel auf beispielsweise Gartenfliesen oder Leichtklinker verwendet werden.
Dachabdeckung:
Die Dacheindeckung ist nicht im Lieferumfang enthalten, steht aber zur Auswahl.
Abmessungen & Spezifikationen:
Material: Nordische Fichte
Wandstärke: 40 mm
Zimmeranzahl: 4
Behandlung: Unbehandelt
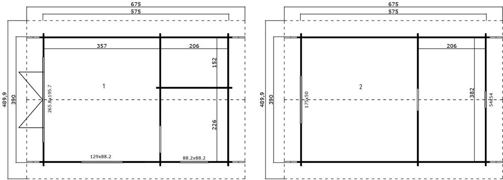
Standardmaße: 410 x 595 cm
Wandmaße: 390 x 575 cm
Abmessung Fundamentplatten: 45x70 mm
Wohnfläche : 21,66 m²
Volumen: 61,73 m³
Wandhöhe: 330,6 cm
Spitzenhöhe : 239,4 cm
Deckenüberstand: 50 cm
Dimension Dachbretter: 18x90 mm
Dachfläche: 37,12 m²
Dachneigung: 27°
Dimension Dielen: 18x90 mm
Türen:
Türtyp: Doppeltür mit Fenster
Menge: 1 Stk
Türabmessungen: 2658 x 1957 mm
Art der Tür: EinzeltürMenge: 1 Stk
Türabmessungen: 835 x 1900 mm
- Fenster:
Fensterart: Doppelfenster, nach innen öffnend
Anzahl Fenster: 1 Stk
Fenstermaße: 1290 x 882 mm
Fenstertyp: Einzelfenster, nach innen öffnendAnzahl Fenster: 1 Stk
Fenstermaße: 882 x 882 mm
Fenstertyp: Einzelfenster, nach innen öffnendAnzahl Fenster: 1 Stk
Fensterabmessungen: 540 x 540 mm
Fenstertyp: Einzelfenster, feststehendAnzahl Fenster: 1 Stk
Fenstermaße: 1500 x 510 mm
So gehen wir mit Kundenrezensionen um:
Wir stellen sicher, dass unsere Produktbewertungen von echten Kunden stammen, durch folgenden Prozess:
Nach jeder ausgelieferten Bestellung senden wir dem Kunden per E-Mail einen eindeutigen Link. Über diesen Link kann der Kunde ausschließlich die spezifischen Produkte bewerten, die in der jeweiligen Bestellung enthalten waren – andere Produkte können über denselben Link nicht bewertet werden. Auf der Bewertungsseite hat der Kunde zudem die Möglichkeit, uns als Händler zu bewerten. Diese Methode garantiert, dass alle Rezensionen von Kunden stammen, die die bewerteten Produkte tatsächlich gekauft und erhalten haben.
Veröffentlichung von RezensionenWir veröffentlichen alle Rezensionen, die unseren Richtlinien entsprechen, unabhängig von der Bewertung. Das bedeutet, dass sowohl positive als auch negative Meinungen angezeigt werden, solange sie keine unangemessene Sprache, persönlichen Angriffe enthalten oder irrelevant sind.
Rezensionen, die sich ausschließlich auf Lieferprobleme (z.B. Verspätungen) beziehen, werden nicht auf der Produktseite veröffentlicht, da sie nicht das Produkt selbst bewerten. Solche Anmerkungen können jedoch in der Händlerbewertung hinterlassen werden.
Berechnung der DurchschnittsbewertungDie durchschnittliche Bewertung eines Produkts wird als Mittelwert aller veröffentlichten Rezensionen für genau dieses Produkt angezeigt.
Mehr lesenVolle 5 Sterne + für den Kundendienst und Service!!!! Wir hatten eine Rückfrage zu den automatischen Fensteröffner und es wurde super schnell und unkompliziert geholfen und gehalten was versprochen wurde!!! FAZIT immer wieder gern und eine 100 prozentige Weiterempfehlung von unserer Seite her!!!
- Niedrige Preise & großes Sortiment
- Nur hochwertige Produkte!
- Zahlen Sie 14 Tage nach Lieferung ohne Aufpreis!
- Schnelle Lieferung!
- Ausgezeichneter Kundenservice!
- Unser kompetenter und zuvorkommender Kundenservice steht Ihnen gerne zur Seite und beantwortet alle Fragen rund um Ihren Kauf!
Indem Sie Mitglied werden, akzeptieren Sie Freddyhaus.de Datenschutzbestimmungen.







