Abstellraum Abel C - 7,6 m²
Wenn Sie zusätzlichen Stauraum im Garten benötigen, ist dieser Geräteschuppen vielleicht genau das Richtige für Sie. Die Lagerung fällt unter die Regelung für freistehende Schuppen, wo beliebig viele mit einer Gesamtfläche von 15 Quadratmetern neben einem Ein- oder Zweifamilienhaus errichtet werden dürfen. Denken Sie nur daran, dass die Gesamthöhe 3 Meter nicht überschreiten darf. Erkundigen Sie sich bei der Wohnungsbehörde nach zusätzlichen Vorschriften für befreite Cottages.
Diese Aufbewahrung ist in verschiedenen Größen erhältlich.
Fertig zum Zusammenbauen
Diese Aufbewahrungseinheit wird komplett als Bausatz geliefert und lässt sich anhand der beigefügten Zeichnung einfach zusammenbauen. Der Schuppen hat ein Design und eine Struktur aus astigem Holz, wodurch er sowohl einfach zu montieren als auch stabil ist. Alle Materialien werden unbehandelt geliefert, es empfiehlt sich eine frühzeitige Behandlung mit Grundöl, Außengrundierung oder Decklack. Enthalten ist alles, was für die Montage benötigt wird, also Nägel, Schrauben usw.
Dach/Boden und Fundament
Dach und Boden bestehen aus 18 mm Rohblech, Dach ist inklusive und Boden steht zur Auswahl. Behandelte Stützlinien für das Fundament sind nicht standardmäßig enthalten, werden jedoch bei der Wahl des Bodenbelags mitgeliefert. Das Fundament müssen Sie selbst herstellen, Materialien dafür sind nicht im Lieferumfang enthalten. Wie das Fundament hergestellt wird, hängt von den Bodenverhältnissen, der Optik des Schuppens und Ihren Vorlieben ab. Es kann entweder eine Platte gegossen oder ein Sockelsockel auf beispielsweise Gartenfliesen oder Leichtklinker verwendet werden.
Dachpappe ist im Lieferumfang enthalten, Schindeln stehen zur Auswahl.
- Material: Nordische Fichte
- Wandstärke: 28 mm
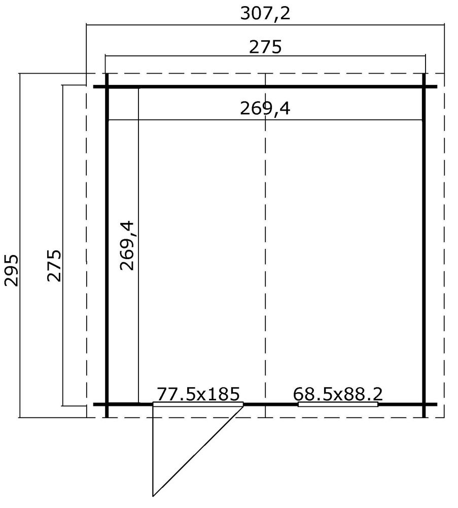
- Maße Außenwand: 275x275 cm
- Grundfläche: 7,26 m²
- Spitzenhöhe: 233,7 cm
- Wandhöhe: 193,8 cm
- Deckenüberstand: 10 cm
- Dachfläche: 9,44 m²
- Dachneigung: 16,2°
- Fenster: 1 x Fenster (685 x 882 mm), 1-Glas (4 mm) nach innen mit Kipp, Holzjalousien
- Tür: 1 x (775 x 1850 mm), aus massiver Fichte mit Alu-Schwelle, inkl. Schließzylinder und Griff
- Gewicht: 480 kg
Mehr lesen
Mehr lesen
So gehen wir mit Kundenrezensionen um:
Wir stellen sicher, dass unsere Produktbewertungen von echten Kunden stammen, durch folgenden Prozess:
Nach jeder ausgelieferten Bestellung senden wir dem Kunden per E-Mail einen eindeutigen Link. Über diesen Link kann der Kunde ausschließlich die spezifischen Produkte bewerten, die in der jeweiligen Bestellung enthalten waren – andere Produkte können über denselben Link nicht bewertet werden. Auf der Bewertungsseite hat der Kunde zudem die Möglichkeit, uns als Händler zu bewerten. Diese Methode garantiert, dass alle Rezensionen von Kunden stammen, die die bewerteten Produkte tatsächlich gekauft und erhalten haben.
Veröffentlichung von RezensionenWir veröffentlichen alle Rezensionen, die unseren Richtlinien entsprechen, unabhängig von der Bewertung. Das bedeutet, dass sowohl positive als auch negative Meinungen angezeigt werden, solange sie keine unangemessene Sprache, persönlichen Angriffe enthalten oder irrelevant sind.
Rezensionen, die sich ausschließlich auf Lieferprobleme (z.B. Verspätungen) beziehen, werden nicht auf der Produktseite veröffentlicht, da sie nicht das Produkt selbst bewerten. Solche Anmerkungen können jedoch in der Händlerbewertung hinterlassen werden.
Berechnung der DurchschnittsbewertungDie durchschnittliche Bewertung eines Produkts wird als Mittelwert aller veröffentlichten Rezensionen für genau dieses Produkt angezeigt.
Mehr lesen- Niedrige Preise & großes Sortiment
- Nur hochwertige Produkte!
- Zahlen Sie 14 Tage nach Lieferung ohne Aufpreis!
- Schnelle Lieferung!
- Ausgezeichneter Kundenservice!
- Unser kompetenter und zuvorkommender Kundenservice steht Ihnen gerne zur Seite und beantwortet alle Fragen rund um Ihren Kauf!
Indem Sie Mitglied werden, akzeptieren Sie Freddyhaus.de Datenschutzbestimmungen.



